Pet friendly
Bring your pet along for the trip
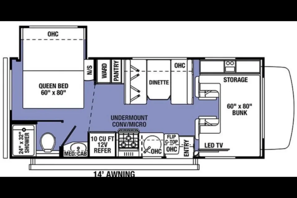
2022 Forest River Sunseeker
Enjoy a great weekend in the mountains, or a trip down to the beaches. Stay the night a winery or a brewery. Gather some friends and have a great time tailgating your favorite sports teams!
The RV life has plenty to do at any time of the year!
Sleeps
5# of seat belts (lap belts)
2# of seat belts (shoulder belts)
2# of slide outs
1Length(ft)
23 ftType of RV
Class CAccommodations
2 beds
Queen
1 dinette bed
Single
What this RV offers
Pet friendly
Camping chairs
Inverter
Linens provided
Leveling jacks
On board generator
Solar
Aux input
Backup camera
Radio
TV & DVD
USB input
Refrigerator
Stove range
Microwave
Kitchen sink
Dining table
Freezer
Oven
Inside shower
Toilet
Heater
Air conditioner
Family friendly
Nearby KOA campgroundsView campgrounds
Rates & discounts
Midweek
NoneWeekly
$225/Night10% off
Monthly
$200/Night20% off
Security Deposit
$1,000Fully refundable
Mileage
100miles/day free$0.35/miles extra
Power Generator
4 hours/day free$5.00/hour extra
RV rules
Flexible pickup time • Flexible drop-off time
RV must be returned clean and tidy
Experienced driver required
No smoking
Check availability
Select your trip dates


