No truck no problem
This host offers delivery up to 100 miles
Pet friendly
Bring your pet along for the trip
2008 Forest River wildwood
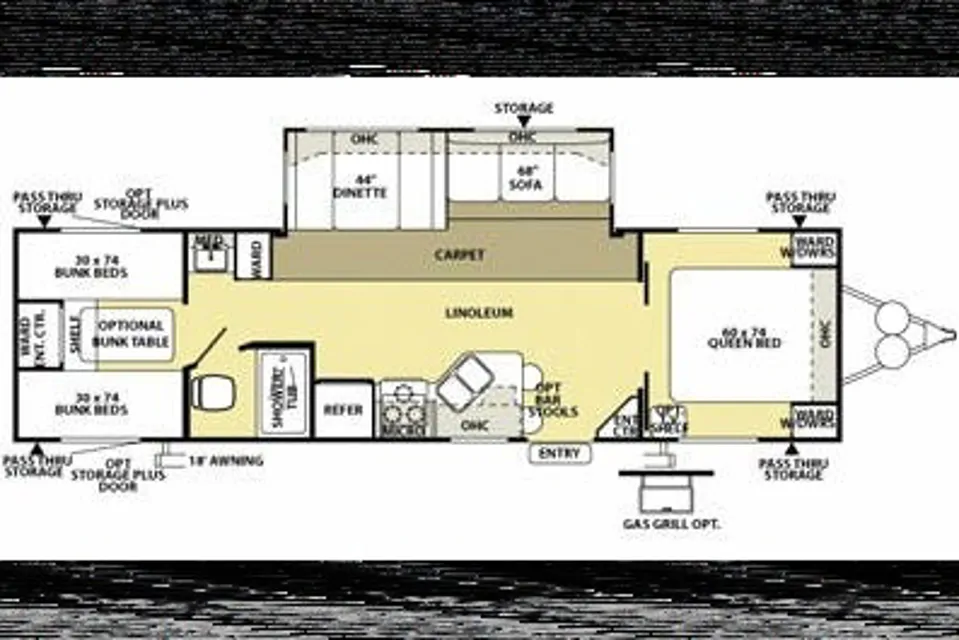
The Forest River Wildwood 31QBSS is a travel trailer designed for families or groups who need plenty of sleeping space and amenities for camping or extended stays.
This home away from home is fully stocked and ready to go!
SLEEPING ARRANGEMENTS:
*Queen sized bed in the front bedroom with storage underneath. Pocket doors provide privacy from the rest of the trailer.
*Private bunk house with 4 bunks, ideal for kids or additional guests. These can fit an adult size person.
*Convertible Dinette for adult sized people, and a sleeper sofa for smaller sized people in the living area for additional sleeping space.
LIVING AREA:
*Spacious living/dining area with a large slide out for extra space.
*Entertainment center with TV and DVD player included.
*Inside and outside speakers with blue tooth capabilities, so you can Glamp in style.
KITCHEN:
*Equipped with 3 burner stove, oven, microwave, and midsize refrigerator.
*double basin sink.
*Tons of cabinet storage.
BATHROOM:
A full bathroom with enclosed toilet and shower with a sink on the outside so getting ready in the morning is so much easier for multiple people.
OTHER FEATURES:
*LED lighting throughout.
*Ample exterior storage with pass-through compartments
*Electric breaks for better stopping
*Fully ducted heater, and Roof AC for all weather.
*RULES
*If choosing delivery this must be negotiated at least 30 days prior.
*Towles, bedding and pillows upon request.
*Mattresses must be covered for usage.
*Expect up to 1 hour orientation at time of pick-up, and walk-through at drop off.
Trailer will come with basic cookware, utensils, cups and dishes.
Sleeps
10# of slide outs
1Weight
6660 lbsHitch Size
2 5/16"Hitch Weight
800 lbsLength(ft)
34 ftType of RV
Travel TrailerAccommodations
1 bed
Queen
1 dinette bed
Single
1 pullout sofa
Double
4 bunk beds
Twin
What this RV offers
Pet friendly
Awning
Inverter
Linens provided
Inside shower
Toilet
Air conditioner
Heater
Aux input
Backup camera
CD player
Radio
TV & DVD
Refrigerator
Stove range
Microwave
Kitchen sink
Dining table
Freezer
Oven
Family friendly
Extra storage
Delivery options
RV located in Longmont, Colorado
Pick upFree
Pick up and drop off the RV yourself for free in Longmont, Colorado. Exact location shared after booking.
Delivery$3.00 USD per mile
No driving necessary! Whether it’s to your campsite or your door, the host will deliver up to 100 miles from their location.
This field is required
The delivery fee will be calculated once you enter the delivery address. This host has a maximum delivery of 100 miles.
Nearby KOA campgroundsView campgrounds
Rates & discounts
Midweek
NoneWeekly
$99/Night10% off
Monthly
NoneSecurity Deposit
$500Fully refundable
RV rules
Pickup from 11:00 AM to 7:00 PM • Drop-off from 11:00 AM to 5:00 PM
RV must be returned clean and tidy
Towing experience required
No smoking
Check availability
Select your trip dates


